Approximate Size: 2,421 sf (Convert to Sq m)
Last Updated: January 10th, 2018





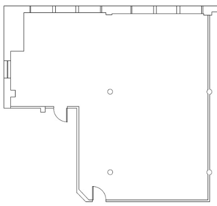
Office has great light with 6 oversized windows facing north, and one window facing west. Located between 5th and 6th avenue on the south side of the street
Tenant controlled package AC unit.
The space already has a wet panty.
The space has more windows than most its size because of additional area in the NW corner.
In partnership with Skylight.
Monthly Rent: $13,517
Approximate Size: 2,421 sf (Convert to Sq m)
Last Updated: January 10th, 2018
Zoom In << Swipe >> Zoom Out
Maximum zoom level
The Flatiron District is located within Midtown and is bounded on the north by the triangular Flatiron building (known as the Fuller Building located on the corner of 23rd St.). Located close to Madison Square Garden, Penn Station, and Times Square. FlatIron is ideal for tenants seeking commercial, retail, and class A, B or C office space for sale, lease or sublease. Many buildings feature amenities such as 24-hour doormen and access, high ceilings, dedicated elevators, sophisticated reception and conference areas, IT support, impressive views, large windows, and pre war architectural charm. Tenants looking to lease or sublease office space in this New York neighborhood can expect to rub shoulders with creative advertising, marketing, PR, and media companies as well as boutique hedge funds, asset managers, and law firms. The area also boasts world-class shopping and dining on the historic Fifth Avenue as well as numerous other spots around the neighborhood.