Approximate Size: 2,454 sf (Convert to Sq m)
Last Updated: January 10th, 2018




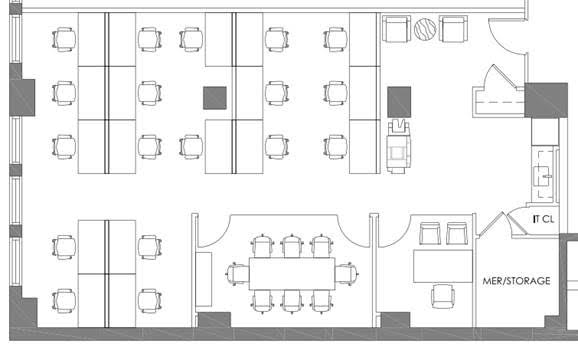
This 13,904 office located in NoMad has expansive views with an open floor plan. Office opens into a foyer with a waiting area for visitors. Office comes with a side conference room, storage space and a kitchen. Located between 27th and 28th Street
Monthly Rent: $13,906
Approximate Size: 2,454 sf (Convert to Sq m)
Last Updated: January 10th, 2018
Zoom In << Swipe >> Zoom Out
Maximum zoom level